Eric T Hll 60


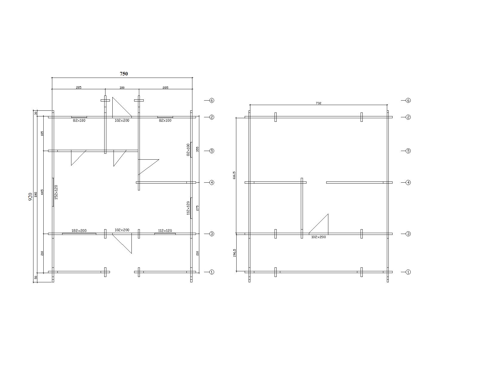
This house have been over many years clients choice if it comes to holiday homes. In the last years it turned out to be also a popular tiny home variant. The client did chose the DIY version of this project and managed the job with some friends very well.

Contact me