Talluden


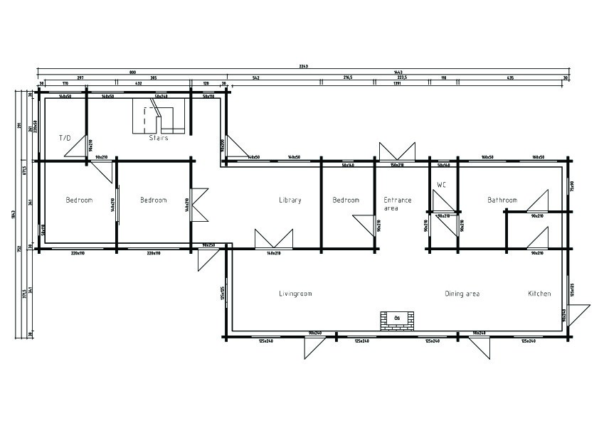
Talluden project We did build this in Sweden and the client finished the house to his liking. Engineered wood is improving on natural qualities of wood. With products that provide longer spans, reduced weight, improved dimensional stability and endless design possibilities. The house Talluden is a project in middle Sweden.

Client driven design and a brilliant cooperation lead to a great open space but still cosy house for a happy family. Talluden has about 200 m2 of space brutto plus a huge terrace to overview the surrounding forest.